

Appartement 3 pièce(s) 2 chambre(s) 73.57 m²
Le Touquet-Paris-Plage (62520)A propos de ce bien
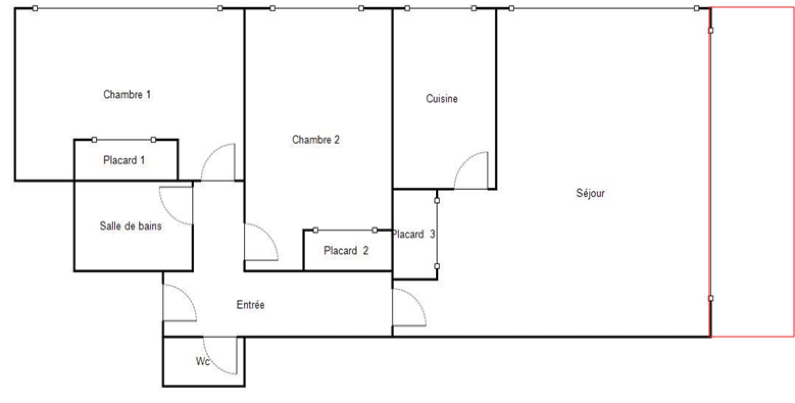
Accès direct au Golf du Touquet pour cet appartement de + de 73 m² exposé Sud Est prolongé par une vaste terrasse ensoleillée :
il comprend :
* une entrée
* un séjour salon baigné de lumière grâce à ses baies vitrées ouvertes sur le parc paysagé
* une terrasse sur toute la largeur du séjour
* une cuisine indépendante pouvant être ouverte sur la pièce de vie
* 1 chambre parentale de 12 m ² avec placards
* 1 chambre avec placards et point d'eau
* une salle de bains
* un WC indépendant
* une place de parking privée
Nous avons aimé :
la luminosité de cet appartement
la vaste terrasse sans vis-à vis et bien exposée
le potentiel de l'appartement
Contactez-nous pour en savoir + sur cet appartement d'exception niché dans un écrin de verdure à 2 pas du golf.
Caractéristiques de ce bien
- Surface 73,57 m²
- carrez 73 m²
- 2 chambre(s)
- 1 salle(s) de bain
- 1 parking(s)
- exposition Sud
- 1 niveau(x)
- 1er étage
- 3 étage(s)
- ascenseur
- vue parc
- cave
- terrasse
- quartier forêt éloignée, Golf
Diagnostics énergétiques
Informations financières
Informations de copropriété
Autour du bien
-
Commerces et santé
-
Loisirs
-
Ecoles
-
Transports
-
Pratique